Deprecated: Function set_magic_quotes_runtime() is deprecated in /www/htdocs/w0065bfe/textpattern/lib/txplib_db.php on line 14

Warning: Cannot modify header information - headers already sent by (output started at /www/htdocs/w0065bfe/textpattern/lib/txplib_db.php:14) in /www/htdocs/w0065bfe/textpattern/lib/txplib_misc.php on line 1242
noplastics.com - Portfolioseite von Christian Steinborn: Besucherzentrum Mainz
.
Besucherzentrum Mainz
Typ: Entwurf Jahr: 2005
Zeit: 3 Monate
Besucherzentrum Mainz - Ansicht Städtebauliche Neuordnung und Entwurf für ein Besucherzentrum am Mainzer Südbahnhof. Der Stadttourist wird zielgerichtet zu bemerkenswerten Orten geführt und erlebt eine neue Verknüpfung zwischen Stadt und Fluss. Als Teil eines übergeordneten Konzeptes bietet das Besucherzentrum Informationen, Ausstellungen, Vorträge, Führungen und ein Café für Mainzer und Gäste. Als Stadtbaustein soll es sich integrieren aber auch neue Potentiale bilden. Besucherzentrum Mainz - Pictogramme

Gebäude:

Die sehr prägnante, aus den inneren Ansprüchen entwickelte Lösung erklärt sich dem Nutzer selbst. Die zurückspringende Glasfassade bildet mit dem anschliessendem Foyer das Entree. Die geschlossenen, aus lagerhaft geschichtetem Granit geformten Gebäudeteile beinhalten Ausstellungsflächen im 2. Geschoss sowie Nebenräume (WC/Souvenirs...). Als größtes Raumvolumen schiebt sich der Vortragssaal (Cortenstahlhülle) leicht aus dem Gebäude heraus und zeigt damit seine wichtige Funktion.

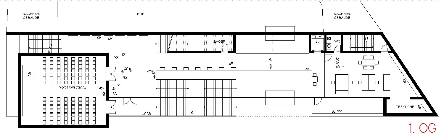
Grundrisse:

2. Obergeschoss: Ausstellungsfläche Besucherzentrum Mainz - Grundriss 2OG 1. Obergeschoss: Vortragsraum:Foyer:Büro Besucherzentrum Mainz - Grundriss 1OG Erdgeschoss: Foyer:Café:Information Besucherzentrum Mainz - Grundriss EG

Faltmodell:

Besucherzentrum Mainz - Faltmodell Als "Schmankerl" und weils so schön einfach ist gibt es diesen Entwurf zum Nachbauen als Faltmodell. Einfach die Bauteile und Anleitung runterladen, ausdrucken (auf etwas dickerem Papier) und losbauen. Es wird nur Schere, Kleber und etwas Modellbaugeschick gebraucht. Viel Spaß!

Download:

Mehr Informationen und Pläne gibt es hier zum Download
Projekt weitersagen

Kommentar schreiben: